Frisch sanierte Erdgeschosswohnung in ruhiger Sackgassenlage von Norden in der Nähe der Innenstadt!
Objektart
Adresse
Objektdaten
Informationen
Ausstattung
Details
Frisch sanierte Erdgeschosswohnung in ruhiger Sackgassenlage von Norden in der Nähe der Innenstadt!
In ruhiger und zugleich gut angebundener Wohnlage von Norden präsentiert sich diese außergewöhnlich hochwertig sanierte Erdgeschosswohnung als echtes Wohlfühlzuhause mit besonderem Wohnkomfort. Die Einheit befindet sich in einem gepflegten Zweifamilienhaus und wird derzeit umfassend modernisiert - die Arbeiten werden in Kürze vollständig abgeschlossen, sodass ein Erstbezug nach Sanierung entsteht.
Bereits der gemeinschaftliche Eingangsbereich vermittelt einen gepflegten und soliden ersten Eindruck. Hier befinden sich neben dem Zugang zu den beiden Wohneinheiten ein gemeinschaftlicher Heizungsraum sowie das Treppenhaus. Von hier aus erschließt sich die separate Wohnungseingangstür der angebotenen Erdgeschosswohnung.
Im Inneren entfaltet sich ein durchdachtes Wohnkonzept mit besonderem Fokus auf Helligkeit und Großzügigkeit. Herzstück ist das beeindruckend lichtdurchflutete Wohnzimmer, geprägt durch vier bodentiefe Fensterelemente. Diese schaffen eine offene Atmosphäre und verbinden den Wohnraum harmonisch mit der sonnig ausgerichteten Terrasse und dem angrenzenden Gartenbereich - ein geschützter Rückzugsort mit hohem Erholungswert.
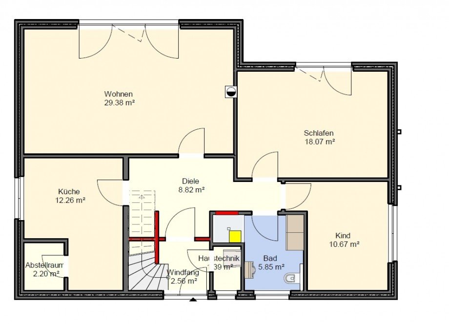
Die Wohnfläche von ca. 90 m² verteilt sich auf eine moderne und funktionale Grundrissgestaltung. Neben dem großzügigen Wohnbereich stehen eine separate Küche, zwei gut geschnittene Schlafzimmer sowie ein hochwertig ausgestattetes, vollständig erneuertes Duschbad zur Verfügung. Die Räume überzeugen durch klare Strukturen, zeitgemäße Materialien und ein stimmiges Gesamtkonzept.
Im Zuge der umfassenden Sanierung wurden zahlreiche hochwertige Maßnahmen durchgeführt, darunter:
-Einbau neuer Fenster
- Verlegung eines modernen Vinylbodens
- Erneuerung der Hauseingangstür
- Installation einer neuen Heizungsanlage (Verbrauchsabrechnung über ista)
- Erneuerung von Putz, Elektrik sowie Maler- und Tapezierarbeiten
weiter unter Ausstattung
- vollständige Sanierung des Badezimmers
Der Außenbereich rundet das Angebot ab: Eine großzügige Terrasse in idealer Sonnenlage führt in den pflegeleicht angelegten Garten und schafft zusätzlichen Wohnraum im Grünen.
Die Wohnung ist ab dem 01.07.2026 bezugsfrei. Die monatliche Kaltmiete beträgt 900 EUR, zuzüglich 110 EUR Nebenkostenvorauszahlung.
Diese Immobilie vereint hochwertig sanierten Wohnraum, ein angenehmes Wohnumfeld im Zweifamilienhaus und ein außergewöhnlich helles Wohngefühl - ideal für alle, die Wert auf Qualität, Ruhe und zeitgemäßes Wohnen legen.
Näheres auf Anfrage!
Wir erlauben uns den Hinweis, dass es sein kann, dass wir für das Erstellen dieser Anzeige KI genutzt haben.
In angenehmer, ruhiger Wohnlage von Norden entfaltet diese Erdgeschosswohnung ihren besonderen Reiz. Eingebettet in ein gepflegtes Wohnumfeld mit gewachsener Nachbarschaft verbindet die Lage ein entspanntes Wohngefühl mit der Nähe zu allen wichtigen Einrichtungen des täglichen Lebens.
Die charmante Innenstadt von Norden ist nur wenige Minuten entfernt und lädt mit ihren kleinen Geschäften, Cafés und Restaurants zum Verweilen ein. Einkaufsmöglichkeiten, Ärzte, Schulen und Kindergärten sind bequem erreichbar und unterstreichen die hohe Alltagstauglichkeit dieser Wohnlage.
Ein besonderes Highlight ist die Nähe zur Nordsee: Das beliebte Nordseebad Norddeich ist in kurzer Zeit erreichbar und bietet mit Strand, Hafen und vielfältigen Freizeitmöglichkeiten einen hohen Erholungswert - ideal für spontane Auszeiten am Meer. Die gute Anbindung an das regionale Verkehrsnetz rundet das Gesamtbild ab.
Die Stadt Norden ist das wirtschaftliche und kulturelle Zentrum des gleichnamigen Landkreises Aurich und blickt auf über 750 Jahre Stadtgeschichte zurück. Als eine der ältesten Städte Ostfrieslands verbindet Norden auf besondere Weise historisches Flair mit moderner Infrastruktur.
Das Herz der Stadt bildet der weitläufige Marktplatz mit der imposanten Ludgeri-Kirche, einem der bedeutendsten historischen Bauwerke der Region. Von hier aus erstreckt sich die Fußgängerzone mit ihren zahlreichen inhabergeführten Geschäften, Cafés und Restaurants - ein lebendiger Treffpunkt für Einheimische und Besucher gleichermaßen. Ergänzt wird das kulturelle Angebot durch Einrichtungen wie das Ostfriesische Teemuseum, das die regionale Teekultur eindrucksvoll erlebbar macht.
Norden verfügt über eine hervorragend ausgebaute Infrastruktur: Mehrere Supermärkte, Fachgeschäfte, Ärztehäuser, Apotheken sowie sämtliche Schulformen und Kindergärten sind im Stadtgebiet vorhanden. Auch ein eigener Bahnanschluss sorgt für eine sehr gute Erreichbarkeit.
Ein besonderes Alleinstellungsmerkmal ist die direkte Verbindung zum Küstenort Norddeich, der als "Tor zu den Inseln" gilt. Von hier aus bestehen regelmäßige Fährverbindungen nach Norderney und Juist. Gleichzeitig bietet Norddeich mit Strand, Hafen, Kurangeboten und maritimer Promenade einen hohen Freizeit- und Erholungswert - und das nur wenige Minuten vom Stadtzentrum entfernt.
Durch diese Kombination aus historischer Substanz, moderner Infrastruktur und unmittelbarer Nähe zur Nordsee zählt Norden zu den gefragtesten Wohnstandorten in Ostfriesland - sowohl für Eigennutzer als auch für Mieter.
Ansprechpartner
Telefax: 0049493115791
service@kayser-norddeich.de
Energieausweis (Verbrauchsausweis)
189,50 kWh / (m²*a) Energieverbrauchskennwert
189,50 kWh / (m²*a) Energieverbrauchskennwert
189,50 kWh / (m²*a) Energieverbrauchskennwert
Weitere Informationen
| Wesentlicher Energieträger | GAS |
| Energieausweis gültig bis | 2034-04-15 |
| Energieausweis Jahrgang | ab dem 1.5.2014 |
| Energieausweis Werteklasse | F |
| Energieausweis Baujahr | 1978 |
| Energieausweis Gebäudeart | Wohngebäude |
| Heizung | Zentralheizung |
| Befeuerung | Gas |
Ich bin damit einverstanden, dass mir Karten von Google angezeigt werden. Es gelten die Datenschutzbedingungen von Google (https://policies.google.com/privacy).
Ich bin einverstanden